본문 바로가기

신활력플러스사업을 총괄·관리하고 다양한 참여 주체들의 교류 거점이 될 플랫폼을 조성합니다.
힐링고고센터는 액션그룹들이 원활하게 업무를 진행하고 교육프로그램을 운영할 수 있도록 그 기능을 집적화하여
조성한 시설로, 지역민과 방문객의 교류 활성화를 지원합니다.
  • 구분

    663.48㎡ / 201평

  • 구조

    철근 콘크리트 구조

  • 층별 면적

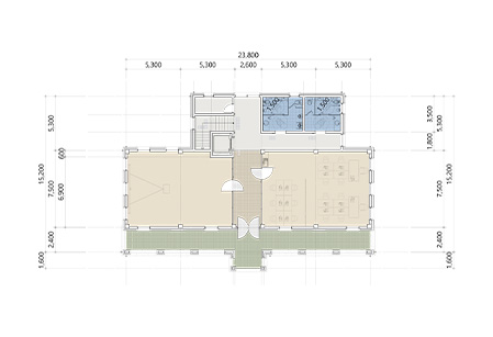
    지상 1층 : 316.74㎡ /96평
    지상 2층 : 316.74㎡ /96평

  • 건축 내용

    지상 1층 : 홍보실 / 공유주방 / 휴게실 / 수유실
    지상 2층 : 추진단 사무실 / 교육장

  • 건축 형태

    덕수궁 중명전

  • 비고

    기존 유휴 및 노후 건물 3동 철거 후 착공
    2024년 준공

  • 힐링플랫폼준공식

  • 교육장

  • 공유주방

  • 홍보실

  • 2층복도

  • 힐링플랫폼 유화

  • 외부 전경

  • 1층 평면도

  • 2층 평면도

  • 현장평면도